Мирзо-Улугбекский район
Номер объекта: 000152
Продается в новостройке ЖК Shahriobod Евродвушка

Шахриабад
92 м2
2 комнат
совмещенный
7/10 уровней
Квартира
Цена: 115000 у.е.
Оставить заявку
Позвонить+998333191333
Описание
2-комнатная квартира
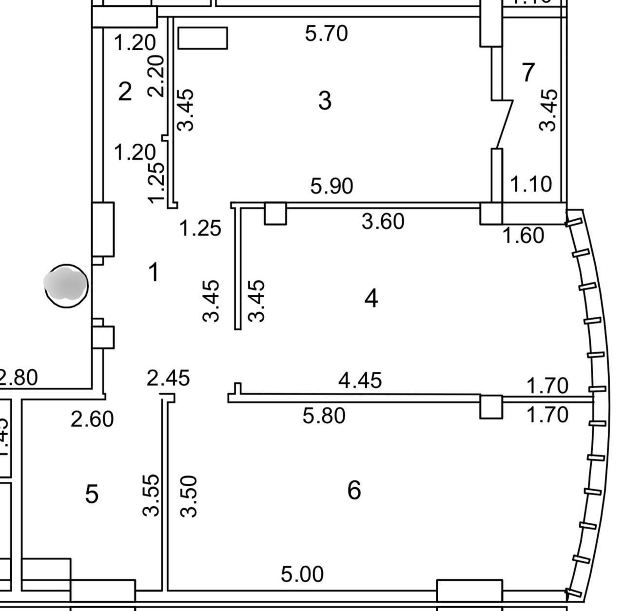
- Площадь92 м2
- Этажность7/10
- Санузлысовмещенный
- Тип объектаНовостройка
- ПланировкаРаздельная планировка
- РемонтЧерновая отделка
- АдресШахриабад
МИРЗО-УЛУГБЕКСКОМ РАЙОНЕ
ЖК Shahriobod (Шахриобод)
Если вы ищете объект, который:
легко продать
можно выгодно перепродать
или сделать ремонт «под себя» —
обратите внимание на этот вариант.
Состояние: черновая отделка
Документы: кадастр готов
Евродвушка
общая площадь: 92 м²
Этаж: 7
Этажность 10
Цена: 1250 уе за м²
Цена: 115 000 уе
Просторная площадь — идеально для семьи или премиальной перепродажи после ремонта.
ЖК Shahriobod (Шахриобод)
Если вы ищете объект, который:
легко продать
можно выгодно перепродать
или сделать ремонт «под себя» —
обратите внимание на этот вариант.
Состояние: черновая отделка
Документы: кадастр готов
Евродвушка
общая площадь: 92 м²
Этаж: 7
Этажность 10
Цена: 1250 уе за м²
Цена: 115 000 уе
Просторная площадь — идеально для семьи или премиальной перепродажи после ремонта.
Фотогалерея
Характеристики
Основные параметры объекта
МИРЗО-УЛУГБЕКСКОМ РАЙОНЕ ЖК Shahriobod (Шахриобод) Если вы ищете объект, который: легко продать можно выгодно перепродать или сделать ремонт «под себя» — обратите внимание на этот вариант. Состояни...
Параметры
- Площадь92 м2
- Комнат2
- Санузловсовмещенный
- Уровней7/10
- Тип объектаНовостройка
- ПланировкаРаздельная планировка
- РемонтЧерновая отделка
- АдресШахриабад
Цена
Эксклюзивная стоимость объекта
Цена: 115000 у.е.
Показы — по предварительной записи
Смотрите также
Похожие объекты
Индивидуальная консультация
Подберем объект
под ваш запрос
Оставьте заявку, мы свяжемся с вами и организуем просмотр.






















































